Soporte Rueda

Ejercicios pensados para poder empezar a entender el 3D.
Imagen - INDICE EJERCICIOS PUBLICADOS


Avatar de Usuario

Autor del Tema
Ricardo
Moderador
Moderador
Mensajes: 9016
Registrado: Lun Nov 23, 2009 7:54 pm
Temas: 1311
Programa: SOLID WORKS
Agradecido : 3612 veces
Agradecimiento recibido: 4115 veces
Género:
Estado: Desconectado

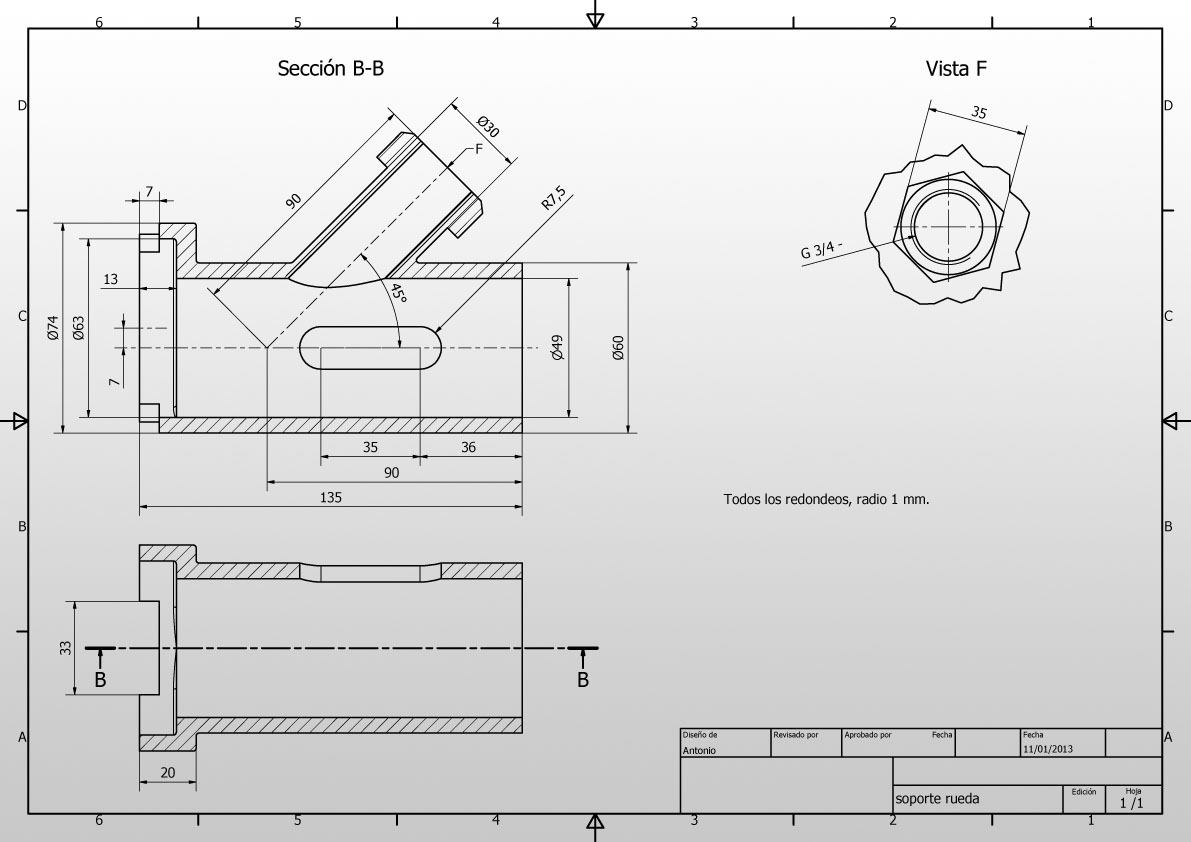
Soporte Rueda

Mensaje por Ricardo »

No se porque le llaman "Soporte Rueda" pero como en el plano que tengo lo llaman así pues yo lo mismo.

Imagen

Animaos que no es difícil.

:68 :68 :68

PD. Si no ponemos el 3D, durante unos días, no damos pistas de como hacerlo, gracias.

Última edición por Mondeo14 el Jue Mar 16, 2017 10:32 pm, editado 8 veces en total.
https://astemar-ricardo.blogspot.com

Procesador Intel I7 12700K a 3'60 Ghz, Ram DDR3-1600 32 Gb, Tarjeta gráfica NVIDIA GeForce GT1030, Windows 11 Home 64 bits
Avatar de Usuario

Mondeo14
Webmaster
Webmaster
Mensajes: 11785
Registrado: Mar Nov 03, 2009 8:48 pm
Temas: 874
Programa: INVENTOR
Ubicación: NAVARRA
Agradecido : 4498 veces
Agradecimiento recibido: 3634 veces
Género:
Zodíaco:
Edad: 64
Estado: Desconectado

Re: Soporte Rueda

Mensaje por Mondeo14 »

Tranquilos, no me pasa nada, simplemente que estoy con otras cosas y casi no tengo tiempo ni para hacer nada de lo propuesto. Pero vista la pieza que ha puesto Ricardo, me ha parecido interesante y además, me ha dado por hacer hasta la rosca, que es lo que mas me ha costado :44 :44
De momento, sin 3D, solo el plano para que penséis un poco.

Imagen

Última edición por Ricardo el Dom Nov 06, 2016 9:00 pm, editado 1 vez en total.

Un saludo

Nos leemos, Mondi


Procesador: CPU Intel i7 4820kDisco Duro: SSD 500 GB y 2 TBMemoria RAM: 24 GB-DDR3 667 MHzTarjeta Gráfica: NVIDIA Quadro K2000 2 GB GDDR5


Avatar de Usuario

Autor del Tema
Ricardo
Moderador
Moderador
Mensajes: 9016
Registrado: Lun Nov 23, 2009 7:54 pm
Temas: 1311
Programa: SOLID WORKS
Agradecido : 3612 veces
Agradecimiento recibido: 4115 veces
Género:
Estado: Desconectado

Re: Soporte Rueda

Mensaje por Ricardo »

Ya que te ha costado un poco, punto por la rosca. :68 :68 :68

Saludos.

https://astemar-ricardo.blogspot.com

Procesador Intel I7 12700K a 3'60 Ghz, Ram DDR3-1600 32 Gb, Tarjeta gráfica NVIDIA GeForce GT1030, Windows 11 Home 64 bits
Avatar de Usuario

jcsblas
Oficial 3º
Oficial 3º
Mensajes: 731
Registrado: Vie Dic 16, 2011 12:26 pm
Temas: 29
Programa: INVENTOR
Ubicación: Toledo
Agradecimiento recibido: 19 veces
Género:
Zodíaco:
Edad: 63
Estado: Desconectado

Re: Soporte Rueda

Mensaje por jcsblas »

Buenos dias, aqui dejo mi solución

Imagen

Saludos

Última edición por Mondeo14 el Mié Dic 07, 2016 8:23 pm, editado 1 vez en total.

Felicidad es querer lo que se hace, no hacer lo que se quiere.

Avatar de Usuario

Autor del Tema
Ricardo
Moderador
Moderador
Mensajes: 9016
Registrado: Lun Nov 23, 2009 7:54 pm
Temas: 1311
Programa: SOLID WORKS
Agradecido : 3612 veces
Agradecimiento recibido: 4115 veces
Género:
Estado: Desconectado

Re: Soporte Rueda

Mensaje por Ricardo »

Un punto para jcsblas y ya tienes 110.

:68 :68 :68

https://astemar-ricardo.blogspot.com

Procesador Intel I7 12700K a 3'60 Ghz, Ram DDR3-1600 32 Gb, Tarjeta gráfica NVIDIA GeForce GT1030, Windows 11 Home 64 bits
Avatar de Usuario

jcsblas
Oficial 3º
Oficial 3º
Mensajes: 731
Registrado: Vie Dic 16, 2011 12:26 pm
Temas: 29
Programa: INVENTOR
Ubicación: Toledo
Agradecimiento recibido: 19 veces
Género:
Zodíaco:
Edad: 63
Estado: Desconectado

Re: Soporte Rueda

Mensaje por jcsblas »

Gracias por el punto 110
:19 :19 :19 estas a tu salud
Saludos

Felicidad es querer lo que se hace, no hacer lo que se quiere.

Avatar de Usuario

euclides
Especialista
Especialista
Mensajes: 263
Registrado: Vie Dic 10, 2010 9:46 am
Temas: 17
Programa: INVENTOR
Ubicación: Sevilla
Agradecimiento recibido: 24 veces
Género:
Zodíaco:
Edad: 58
Estado: Desconectado

Re: Soporte Rueda

Mensaje por euclides »

Aquí mi plano:

Imagen

La rosca no se vé :58

Última edición por Mondeo14 el Mié Dic 07, 2016 8:24 pm, editado 1 vez en total.
- Estación hp Z800
- Dos procesadores Xeon X5680 a 3,3 GHz
- Quadro 5000 2.5 GB
- 64 GB RAM
- 1 TB Raid 0 para el sistema
- 2 TB para almacén
- Windows 10 Prof. 64 bits
- Programa: Inventor 2018 Profesional.
Avatar de Usuario

Autor del Tema
Ricardo
Moderador
Moderador
Mensajes: 9016
Registrado: Lun Nov 23, 2009 7:54 pm
Temas: 1311
Programa: SOLID WORKS
Agradecido : 3612 veces
Agradecimiento recibido: 4115 veces
Género:
Estado: Desconectado

Re: Soporte Rueda

Mensaje por Ricardo »

Muy bien Euclides, para que se vea la rosca esta debe estar hecha mediante un corte por barrido no con la opción rosca del programa.

Punto de todas formas, el plano es perfecto, incluso me atrevería a decir que esta dentro de las normas, no asi el que he hecho yo que se ve la rosca real.

Saludos.

https://astemar-ricardo.blogspot.com

Procesador Intel I7 12700K a 3'60 Ghz, Ram DDR3-1600 32 Gb, Tarjeta gráfica NVIDIA GeForce GT1030, Windows 11 Home 64 bits
Avatar de Usuario

Mondeo14
Webmaster
Webmaster
Mensajes: 11785
Registrado: Mar Nov 03, 2009 8:48 pm
Temas: 874
Programa: INVENTOR
Ubicación: NAVARRA
Agradecido : 4498 veces
Agradecimiento recibido: 3634 veces
Género:
Zodíaco:
Edad: 64
Estado: Desconectado

Re: Soporte Rueda

Mensaje por Mondeo14 »

euclides escribió:

La rosca no se vé

:44 :44 Porque no la has hecho en 3D :44 :44

Un saludo

Nos leemos, Mondi


Procesador: CPU Intel i7 4820kDisco Duro: SSD 500 GB y 2 TBMemoria RAM: 24 GB-DDR3 667 MHzTarjeta Gráfica: NVIDIA Quadro K2000 2 GB GDDR5


Avatar de Usuario

euclides
Especialista
Especialista
Mensajes: 263
Registrado: Vie Dic 10, 2010 9:46 am
Temas: 17
Programa: INVENTOR
Ubicación: Sevilla
Agradecimiento recibido: 24 veces
Género:
Zodíaco:
Edad: 58
Estado: Desconectado

Re: Soporte Rueda

Mensaje por euclides »

Ahora se verá... :53
Como no me deja publicar menos de 30 caracteres, pongo esto. :28

- Estación hp Z800
- Dos procesadores Xeon X5680 a 3,3 GHz
- Quadro 5000 2.5 GB
- 64 GB RAM
- 1 TB Raid 0 para el sistema
- 2 TB para almacén
- Windows 10 Prof. 64 bits
- Programa: Inventor 2018 Profesional.
Avatar de Usuario

Memicouso
Oficial 2º
Oficial 2º
Mensajes: 986
Registrado: Mar May 31, 2011 8:07 pm
Temas: 53
Programa: CATIA
Ubicación: Cádiz
Agradecido : 27 veces
Agradecimiento recibido: 58 veces
Género:
Zodíaco:
Edad: 57
Estado: Desconectado

Re: Soporte Rueda

Mensaje por Memicouso »

He hecho ésta lámina muy interesante :46 de éste soporte_rueda, aunque yo y las roscas no nos llevamos muy bien. Salu2s :35

Imagen

Última edición por Ricardo el Dom Nov 06, 2016 9:01 pm, editado 2 veces en total.

No sé que tienen las flores, las flores de mi alameda que cuando las olas rompen rompen "pa" asomarse a verlas.

Avatar de Usuario

Isra_RA
Usuari@
Usuari@
Mensajes: 27
Registrado: Mar Dic 18, 2012 12:20 pm
Temas: 0
Programa: SOLID WORKS
Género:
Estado: Desconectado

Re: Soporte Rueda

Mensaje por Isra_RA »

Hola, ya tengo la pieza esta hecha, pero tengo una duda, ¿como hago para hacer el 2D y poner directamente una vista seccionada? la única manera que he encontrado es, en mi caso, poniendo la vista lateral e indicando el corte por la mitad para que se vea la planta seccionada, pero no se como poner las dos vistas seccionadas, no se si me he explicado bien, sino me espero a que pongais la solucion y subo unas fotos de las dudas.

PD: Tambien me espero a ver como habeis hecho vosotros la dichosa rosca jeje.

Un saludo.

Avatar de Usuario

Autor del Tema
Ricardo
Moderador
Moderador
Mensajes: 9016
Registrado: Lun Nov 23, 2009 7:54 pm
Temas: 1311
Programa: SOLID WORKS
Agradecido : 3612 veces
Agradecimiento recibido: 4115 veces
Género:
Estado: Desconectado

Re: Soporte Rueda

Mensaje por Ricardo »

Prueba esto Isra_RA.

En el 2D crea la vista de planta, ahora haz el corte A-A y ponlo en alzado.

A continuación selecciona la vista planta y dibuja un rectángulo en cuyo interior esté el dibujo.

Selecciona este rectángulo y vas a "Sección parcial" marca la distancia hasta donde quieres cortar (en este caso será la mitad de la pieza) y listo.

Saludos.

https://astemar-ricardo.blogspot.com

Procesador Intel I7 12700K a 3'60 Ghz, Ram DDR3-1600 32 Gb, Tarjeta gráfica NVIDIA GeForce GT1030, Windows 11 Home 64 bits
Avatar de Usuario

euclides
Especialista
Especialista
Mensajes: 263
Registrado: Vie Dic 10, 2010 9:46 am
Temas: 17
Programa: INVENTOR
Ubicación: Sevilla
Agradecimiento recibido: 24 veces
Género:
Zodíaco:
Edad: 58
Estado: Desconectado

Re: Soporte Rueda

Mensaje por euclides »

Pensaba hacer la rosca con el "Thread Modeler" para Inventor, pero resulta que no respeta el ángulo de unión entre las dos piezas:

Imagen

Tendré que hacer un barrido.

Última edición por Mondeo14 el Mié Dic 07, 2016 8:25 pm, editado 1 vez en total.
- Estación hp Z800
- Dos procesadores Xeon X5680 a 3,3 GHz
- Quadro 5000 2.5 GB
- 64 GB RAM
- 1 TB Raid 0 para el sistema
- 2 TB para almacén
- Windows 10 Prof. 64 bits
- Programa: Inventor 2018 Profesional.
Avatar de Usuario

Mondeo14
Webmaster
Webmaster
Mensajes: 11785
Registrado: Mar Nov 03, 2009 8:48 pm
Temas: 874
Programa: INVENTOR
Ubicación: NAVARRA
Agradecido : 4498 veces
Agradecimiento recibido: 3634 veces
Género:
Zodíaco:
Edad: 64
Estado: Desconectado

Re: Soporte Rueda

Mensaje por Mondeo14 »

Es que lo que hace esa rutina es un agujero del ø exterior de la rosca y luego le añade el perfil como si tomarías una tira triangular y la pegases.
De todas formas, ahora que lo has hecho así, haz un boceto en la cara derecha y extrusionas el interior con corte, te quita la parte de la rosca que te ha entrado.
Y para futuras ocasiones que quieras usar la rutina en una pieza similar, haz el agujero interior después de la rosca y todo solucionado.

Y no se hace la rosca con barrido, se hace con un triángulo, un eje de revolución y el comando "Espira". Le dices que corte, le das el paso y la longitud (o revoluciones) y listo. Pero un consejo, asegúrate que la base del triángulo no es mayor que el paso, si no te da error de interferencia y no te hace la rosca. Si puedes ponle un décima menos.

Un saludo

Nos leemos, Mondi


Procesador: CPU Intel i7 4820kDisco Duro: SSD 500 GB y 2 TBMemoria RAM: 24 GB-DDR3 667 MHzTarjeta Gráfica: NVIDIA Quadro K2000 2 GB GDDR5